美迪装饰

高品质装修选美迪

十年后仍爱我家

24小时咨询热线

400-096-6088

您的位置: 首页 > 家装百科 > 美家记 > 美家记 | 每1㎡都雅致到骨子里,设计师的家原来是这样

美家记 | 每1㎡都雅致到骨子里,设计师的家原来是这样

浏览数:8906次 | 发布时间:2018-07-10 |
分享到:

心中事,新中式

我们都无法回到那个年代,

该如何将传统文化和实用逻辑

与现代的生活方式结合起来

这是个挑战

设计师总能结合客户的需求交出精彩的作品,当他面对自己房子的设计,又会加入哪些关于设计的狂想呢?本期《美家记》或许能给您答案。


房屋信息


楼盘信息:克拉美丽山庄

案例面积:143㎡

设计风格:新中式 东方雅韵

设计师:美迪大宅徐亮

设计理念: 由于新中式风格是永不过时的经典,同时徐亮设计师对茶文化颇有研究,喜欢茶的谦静与平和,宁静平和的空间让人浮躁的情绪得以沉淀,即使在烦嚣压抑的都市中也可尽享禅意的清静,寻得一方净土,洗涤心灵。


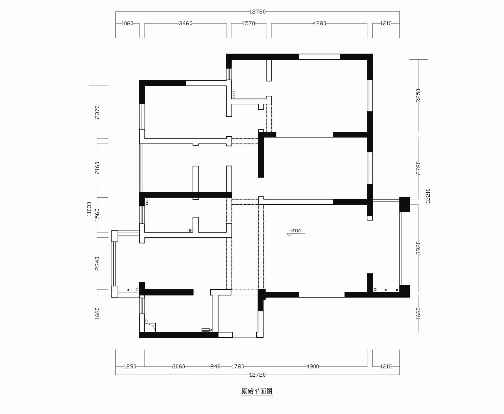
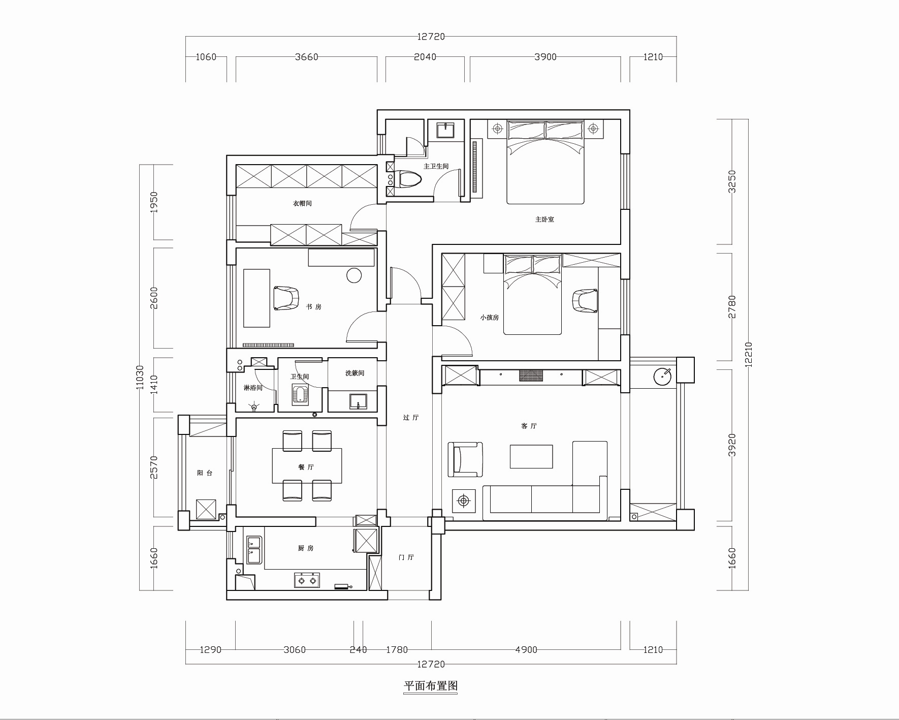
##  平面设计图 ##

▲原始平面图

本期美家是一套改善型住房,为让家人住的更舒适。徐亮设计师打破原有框架把室内无结构力之隔间墙拆除后,给每个地方合理地安排空间。

▲平面布置图


##  入户门厅设计 ##

▲一入户门,入目的便是一对挂画,似看是圆却非圆;与传统中式玄关不同的是,现代背景演绎下的新中式不再钟情于繁琐与沉闷,而是将传统元素和现代元素相互融合,相得益彰,勾画出打破传统却又不显突兀的美感。

“月圆”在古时经常被古人用来表达思念家乡的情感,所以这对挂画也是徐亮设计师想要表达对家人的爱,似乎它同时又是一盏照亮回家的灯,看到它就知道回家了。


##  客厅设计 ##

客厅的设计以方为主,方正的顶面设计与天然材料的互补,令人与自然和谐统一。天花板上的圆形吊灯,方圆之间显现规矩的魅力。造型素简,整体空间雅致沉稳、气度不俗,同时也将徐亮设计师个人性格展现出来。

▲徐亮设计师在整个大地色系为主的客厅空间中适当地添加了别样色彩,奶油色融入的甜腻芬芳,让人沉醉。

室内空间由大面积的留白作为主导,搭配巧克力茶色的家居,大理石地板作为辅助,亮白与奶油色的融合,使空间色彩自然衔接,起到过渡的效用。

▲奶白色的皮质沙发,搭配设计感十足的矩形深棕色茶几,光线柔和的壁灯,沙发墙上几幅携带着文化气息的艺术画,而花卉装饰点缀自然是烘托家居优雅的完美之选,一个雅致的待客氛围就此展开。


##  茶室设计 ##

▲“琴、棋、书、画”在古时既称为“文人四友”,又称“雅人四好”,表示一个人的文化素养,书房是一个有文化底蕴的空间必不可少的存在。

徐亮设计师想要在这套案例中将文化底蕴融入设计中,同时让家中的孩子从小生长在一个文化气息浓厚的家里,激发孩子对传统文化的兴趣。

▲“此书房非彼书房”

规避了浓墨重彩装饰的书房,巧克力茶色悬式书架、原木色的桌椅、罗列整齐的茶具,所有的装饰点缀的恰到好处,既不沉闷,也不浮躁,满满诗意的空间里弥漫着清幽淡雅的书香味,而且时间愈久愈散发出迷人的东方雅韵。

徐亮设计师使用墙面境平常的功能性是扩大视觉空间,另一个特殊性是孩子可以对镜子学跳舞,让孩子发展的更全面。


##  餐厅设计 ##

▲餐厅没有复杂的结构造型,选用中式家具,传统的木质茶几、座椅用现代的手法将线条细化,既有文化底蕴又不会过于沉重。

餐桌边的镜子墙装饰了墙面,使餐厅的空间在视觉上放大;简约大方的实木椅,搭配精致的挂盘装饰而成的画面富有层次感,让用餐的氛围变得温馨又美好。

▲餐厅旁的红酒柜设计和厨房设计都是为了提高运用在生活中的方便性。


##  卧室设计 ##

▲卧室作为现代人重要的休憩之所,是唯一可以真正放松自己的地方。在这一部分的设计,徐亮设计师追求天然的感觉,无论是木材、棉麻等天然材料的运用,目的是让休息之所呈现出让人舒适的气氛。


##  卫生间设计 ##

▲卫生间用灰色系的大理石打造成一个深浅不一的纹理就像有故事的空间,清新淡雅。 

其实在这期的美家中,徐亮设计师想表达的想法就是这不仅仅是一套房子更是家,所以想要一种永不过时的风格,同时徐亮设计师无时无刻在展现“其实越简单越纯粹的东西,往往越能直入人心”的观念;就像小孩子有时简单直接的叙述,会让你恍然大悟。


##  设计师介绍 ##

美迪大宅徐亮

vip首席设计师

个人荣获奖项:

2005 年荣获湖南省室内装饰设计大赛家居实例类铜奖;

2007 年荣获湖南省室内装饰设计大赛家居实例类铜奖;

2008 年荣获湖南省室内装饰设计大赛家居实例类银奖;

2011 年荣获中国室内装饰设计大赛家居方案类银奖;

2013 年荣获中国室内装饰设计大赛家居实例类银奖;

2015 年荣获湖南省室内装饰设计大赛家居实例类金奖;

 

设计理念:

设计师不但要引领潮流、还要融入生活,设计灵感、是出自于生活但又高于生活的一种产物。

(本期编辑:杨琪)

分享到:

相关阅读

免费获取报价